
Die Menschen in Dittelbrunn, Hambach, Holzhausen und Pfändhausen erwarten einen Bürgermeister mit neuen Ideen und Tatkraft.
Ich möchte dieser Bürgermeister sein und mit Ihnen und Euch das Beste aus unserer Gemeinde herausholen.
Auf vielen Feldern kann sich mehr bewegen:
1. Eine Gemeinde für
alle Generationen:
Dittelbrunn braucht jede und jeden. Wir wollen, dass junge Familien bleiben und zuziehen, hierzu braucht es attraktive Betreuungsangebote, ebenso erschwingliches Bauland. Die Jugendarbeit der Vereine muss genauso gefördert werden wie die offene Jugendarbeit in den Gemeindeteilen. Wir wollen aber auch, dass unsere älteren Bürgerinnen und Bürger möglichst lange in ihrer vertrauten Umgebung bleiben und unser Gemeindeleben mit bereichern. Der Seniorenbeirat leistet hier eine wichtige Arbeit, der mehr Beachtung geschenkt werden sollte. Auch die Realisierung einer Seniorenwohnanlage im Gemeindegebiet wird ein Ziel meiner Arbeit sein.
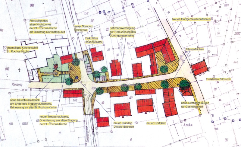
2. Lebendige
Gemeindeteile :
In den vergangenen Jahren fanden erhebliche Anstrengungen zur
Belebung der Ortsmitten statt, die fortgeführt werden müssen. Auch der
Ortsteil Dittelbrunn sollte über einen zentralen Platz verfügen, auf
dem gesellschaftliches Leben stattfinden kann. Die Mitgliedschaft in
der interkommunalen Allianz Oberes Werntal bietet zahlreiche
Möglichkeiten, gemeinsam mit unseren Nachbargemeinden die richtigen
Schritte zu gehen, um dörfliches Leben auch für die Zukunft zu
erhalten. Die Zukunft des Schulstandortes Dittelbrunn muss Priorität
haben. Da der Mittelschulstandort allerdings langfristig nicht
gesichert ist, war die Errichtung der Außenstelle der FOS/BOS
folgerichtig. Hier werde ich besonders auf einen Ausgleich der
Interessen der Schulen und der Anwohner Wert legen.

3. Eine
ökologische Gemeinde:
Umweltschutz beginnt vor Ort. Wir haben den nachfolgenden Generationen gegenüber die Verpflichtung, auf Ressourcenknappheit zu reagieren. Regenerative Energien können und müssen auch bei uns ihren Platz haben.
4. Kulturelles
Leben in der Gemeinde:
Viele Talente wirken in unseren Gemeindeteilen. Sie zu fördern und zu animieren, sich in das öffentliche Leben einzubringen, wird mir ein besonderes Anliegen sein.
5. Bürgernähe als
Selbstverständlichkeit:
Kommunalpolitik muss greifbar sein. Ich werde als Bürgermeister zuhören, moderieren und einbinden. Seiteneinsteiger, die nicht aus der Verwaltung kommen, haben naturgemäß einen anderen Blick für die Bedürfnisse und Wünsche der Bürgerinnen und Bürger und können daher auf ihre Weise neue Impulse vermitteln. Dies haben Bürgermeister aus unseren Nachbargemeinden bestens dargestellt. Die Gemeindeverwaltung verfügt über hervorragend ausgebildete Mitarbeiterinnen und Mitarbeiter, mit denen ich gerne und effektiv zusammenarbeiten werde.